Skyline Heilbronn
Folgen Sie uns
!Font Awesome Free 6.5.2 by @fontawesome – https://fontawesome.com License – https://fontawesome.com/license/free Copyright 2024 Fonticons, Inc.
!Font Awesome Pro 6.5.2 by @fontawesome – https://fontawesome.com License – https://fontawesome.com/license (Commercial License) Copyright 2024 Fonticons, Inc.
!Font Awesome Pro 6.5.2 by @fontawesome – https://fontawesome.com License – https://fontawesome.com/license (Commercial License) Copyright 2024 Fonticons, Inc.
Hochwertige Maisonette-Wohnung mit Balkon, Einbauküche, Garage & Stellplätze

Hochwertige Maisonette-Wohnung mit Balkon, Einbauküche, Garage & Stellplätze

74861 Neudenau

1.255 €
Kaltmiete
  • ca. 107,9 m²
    Wohnfläche
  • 4
    Zimmer
  • ca. 6,6 m²
    Nutzfläche
  • 2021
    Baujahr
  • 3
    Anzahl Schlafzimmer
Objekt-Nr.:

490

Mieterprovision

Maisonette zur Miete

  • Zur Miete
  • Kabel/Sat-TV

Preise

Kaltmiete1.255 €
Warmmiete1.630 €
Nebenkosten375 €
Heizkosten in NK. enthalten
Kaution3.765 €

Flächen

Wohnflächeca. 107,9 m²
Zimmer4
Nutzflächeca. 6,6 m²

Zusätzliche Angaben

verfügbar abnach Vereinbarung
Haustiere erlaubt

Zustand und Bauart

Baujahr2021
Zustandgepflegt
BauweiseMassiv

Räume, Flure und Etagen

Etage2
Schlafzimmer3
Badezimmer1
Separate WCs1
Balkone1

Details

KücheEinbauküche
BodenFliesen
FahrstuhlPersonen
Kabel/Sat-TV
Wasch/Trockenraum
Abstellraum

Stellplätze

Freiplatz
Anzahl2
Garage
Anzahl1
Alle Details anzeigen
  • Beschreibung

    Leben in ruhiger Aussichtslage und den Arbeitgeber in Neckarsulm, Bad Wimpfen oder Heilbronn gleich um die Ecke – das bietet Ihnen diese Maisonette-Wohnung in Neudenau-Herbolzheim.

    Damit trotz Hanglage der größtmögliche Wohnkomfort entsteht, wurde dieses 6-Familienhaus besonders konzipiert. Von den insgesamt vier Wohnebenen sind von der Straße lediglich zwei Ebenen sichtbar, sodass sich das Gebäude gut in das Straßenbild des gewachsenen Wohngebietes einfügt. Gleichzeitig werden die Wohnungen durch großzügige Glasflächen auf der Hangseite mit Licht durchflutet.
    Alle Wohnungen und Abstell- und Gemeinschaftsräume sind stufenlos über einen Personenaufzug von der Eingangsebene aus erreichbar.

    Bei der Gestaltung der Grundrisse und der Wahl der Ausstattung wurde viel Wert auf ein harmonisches Zusammenspiel von Komfort, Design sowie Praxistauglichkeit im Alltag gelegt.

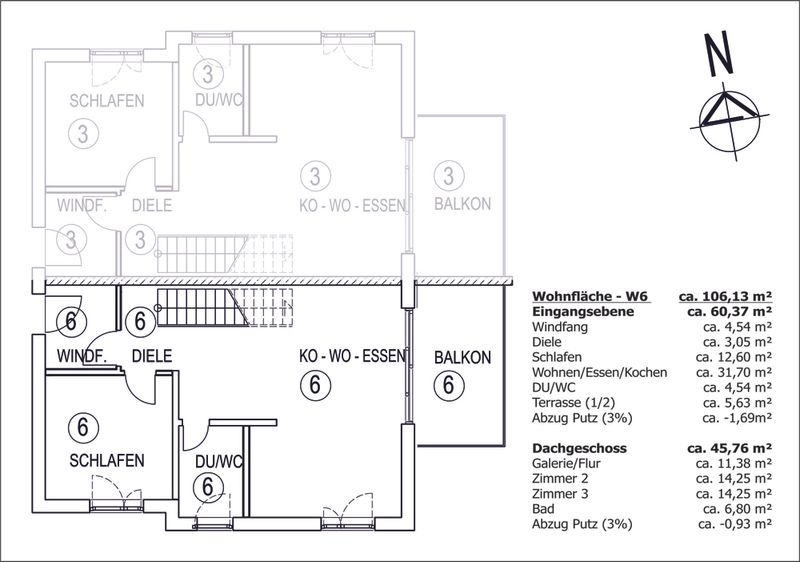
    Bei diesem Angebot handelt es sich um eine 4-Zimmer-Maisonette-Wohnung, die sich im 2. und 3. Obergeschoss befindet. Sie verfügt über einen großen Wohn- & Essbereich, eine offene Küche inkl. EBK, ein Badezimmer, drei Schlafzimmer, ein separates WC, eine Diele und einen Balkon mit wunderschöner Aussicht ins Jagsttal.

    Die genaue Aufteilung entnehmen Sie bitte den beigefügten Grundrissen oder unserem virtuellen Rundgang.

    Der Wohnung ist eine Garage direkt vor dem Haus und zwei Kfz-Außenstellplätze (ca. 150 m entfernt) zugeordnet, die im Preis enthalten sind.

    Die Kaltmiete von 1.255,- Euro setzt sich folgt zusammen:
    – 1.105,- Euro (Wohnung inkl. Keller)
    – 70,- Euro (EInbauküche)
    – 2 x 20,- Euro (Außenstellplätze)
    – 40,- Euro (Garage)

  • Ausstattung

    – Stufenloser Zugang mit einem Personenaufzug, welcher alle Wohnungen erreicht.
    – KFW-Effizienzhaus 55 Standard
    – Umweltfreundliche Luft-/Wärmepumpe
    – Fußbodenheizung in allen Räumen
    – Dezentrale Wohnraumbelüftung & -entlüftung
    – Kunststofffenster mit 3-fach-Isolierverglasung
    – Zwei Bäder mit stilvoller Sanitärausstattung
    – Hochwertige Elektroausstattung inkl. Videosprechanlage und Netzwerkverkabelung
    – Hochwertige Bodenbeläge (Parkett Landhausdiele) & großformatige Fliesen
    – Ost-Balkon mit schöner Aussicht
    – Hochwertige Schreiner-Einbauküche mit Elektrogeräten
    – separater Abstellraum
    – Gemeinschaftlicher Fahrrad- und Kinderwagenabstellraum
    – Gemeinschaftlicher Waschmaschinenraum

  • Lage

    Die Immobilie liegt im Neudenauer Ortsteil Herbolzheim.
    Die Stadt Neudenau mit ihren rund 5.200 Einwohnern liegt in landschaftlich herrlicher Umgebung im idyllischen Jagsttal zwischen Bad Friedrichshall und Möckmühl.

    Erst 1975 kamen im Zuge der Gemeindereform die heutigen Ortsteile Herbolzheim, Siglingen, Reichertshausen und Kreßbach zu Neudenau. Ob zu Fuß, mit dem Rad oder mit dem Kanu – Neudenau bietet jede Menge Freizeitmöglichkeiten. Viele Vereine und Veranstaltungen bieten zahlreiche Möglichkeiten, die Freizeit abwechslungsreich zu gestalten und zu genießen. Kinder sind unser wichtigstes Gut – und damit sie auch gut versorgt sind, gibt es in und um Neudenau ein großes und vielfältiges Angebot an Schulen und Betreuungseinrichtungen:

    Im Stadtteil Neudenau steht eine Grundschule mit Ganztagesangebot sowie in den Stadtteilen Herbolzheim und Siglingen jeweils eine Grundschule zur Verfügung. Weiterführende Schulen sind in Möckmühl, Osterburken, Adelsheim, Bad Friedrichshall, Neckarsulm und Heilbronn vorhanden. Durch die gute Anbindung an Bus und Bahn sind diese gut erreichbar – der Bahnhof ist in wenigen Gehminuten zu Fuß erreichbar.

    Entfernungen:
    – Auffahrt zur Autobahn BAB 81 (Richtung Würzburg): ca. 12 km
    – Auffahrt zur Autobahn BAB 6 (Richtung Stuttgart & Mannheim): ca. 16 km
    – Stadt Neckarsulm: ca. 16 km
    – Stadt Heilbronn: ca. 24 km
    – Stadt Möckmühl: ca. 13 km

    Unterschiedlichste Restaurants, ein Freibad und alle Geschäfte des täglichen Bedarfs (Lebensmitteldiscounter, Tankstelle, Banken, Poststelle, Bäcker, Metzger, Ärzte und Apotheken, usw.) sind in Neudenau vorhanden.
    Quelle: Neudenau.de

  • Sonstiges

    Für eine Bearbeitung Ihrer Anfrage bitten wir Sie, uns Ihre vollständigen Kontakt- und Adressdaten per Anfrage über ein Immobilienportal oder unsere Homepage zu übermitteln. Wir benötigen zwingend Ihre schriftliche Anfrage – bitte sehen Sie von einem Anruf ab.

    Nehmen Sie bitte zusätzlich folgende Informationen mit in den Freitext auf: Personenanzahl, Berufstätigkeit, Raucher/Nichtraucher, Haustiere.
    Anfragen, die diese wichtigen Infos enthalten, werden priorisiert.

    Wir prüfen die, sich in unseren Angeboten befindlichen, Angaben sorgfältig. Trotzdem können wir für die Vollständigkeit und Richtigkeit dieser keine Haftung übernehmen.
    Sämtliche angegebenen Wohnflächen in diesem Exposé wurden gemäß der Wohnflächenverordnung (WoFlV) berechnet.

    Für die Vermietung dieser Immobilie stellen wir dem Vermieter eine Provision in Rechnung. Für den Mieter fällt keine zusätzliche Provision an.

    Zu guter Letzt:
    Wir verkaufen oder vermieten selbstverständlich auch sehr gerne Ihre Immobilie. Das erste Gespräch bei Ihnen oder in unseren Büroräumen ist kostenlos und unverbindlich – wir freuen uns auf Ihren Anruf!

Grundrisse

Energieausweis

EnergieausweistypBedarf
Energieausweis gültig bisFebruar 8, 2031
Endenergiebedarf17 kWh/(m²*a)
EnergieeffizienzklasseA+
Energieausweis Baujahr2021
Wesentlicher EnergieträgerElektro
BefeuerungsartLuft/Wasser-Wärmepumpe
HeizungsartZentralheizung
  • A+
  • A
  • B
  • C
  • D
  • E
  • F
  • G
  • H
  • 0
  • 25
  • 50
  • 75
  • 100
  • 125
  • 150
  • 175
  • 200
  • 225
  • >250
Endenergiebedarf: 17 kWh/(m²*a)
Objektanfrage

*“ zeigt erforderliche Felder an

Hinweis zur Verarbeitung meiner personenbezogenen Daten
Ich willige in die Verarbeitung meiner personenbezogenen Daten auch über die hier gestellte Anfrage hinaus ein und bin mit einer telefonischen und/oder Kontaktaufnahme per E-Mail genauso einverstanden wie mit der Zusendung weiterer Informationen. Diese Einwilligung kann ich jederzeit widerrufen.
Dieses Feld wird bei der Anzeige des Formulars ausgeblendet
Andreas
Drexler
Ansprechpartner
!Font Awesome Free 6.5.1 by @fontawesome – https://fontawesome.com License – https://fontawesome.com/license/free Copyright 2023 Fonticons, Inc.
Dateien